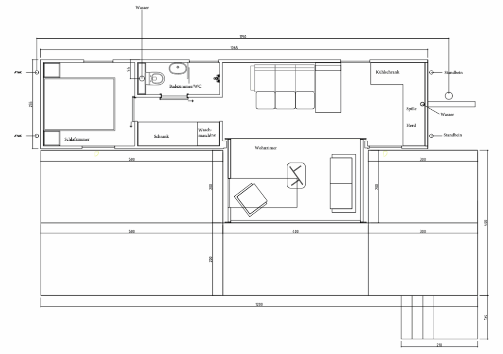
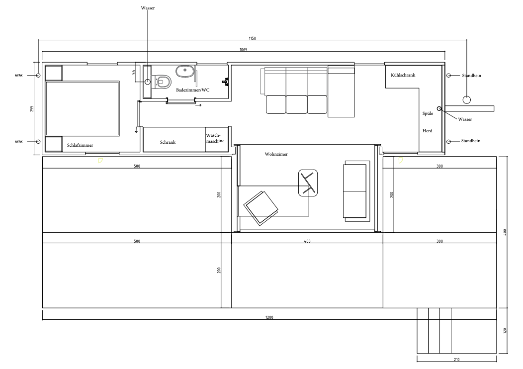
Mobilheim mit Slide-Out – mehr Raum, mehr Komfort
Ein Mobilheim muss nicht eng sein. Mit der Slide-Out-Funktion entsteht aus kompakter Bauweise ein großzügiger Wohnbereich, der sich seitlich erweitert und damit zusätzlichen Platz schafft. Das Ergebnis: ein modernes Zuhause, das auf kleiner Grundfläche erstaunlich viel Wohnqualität bietet.
Große Fensterfronten, ein heller Wohnbereich und hochwertige Materialien prägen das Interieur. Der Slide-Out sorgt dafür, dass sich Wohnzimmer, Küche und Essbereich zu einem offenen Raum verbinden. Schlafzimmer und Bad sind funktional und zugleich komfortabel gestaltet – ideal für den Alltag oder den entspannten Urlaub.
Wohnfläche: 36 m²
Musterhaus Standort: Nürnberg
Komfortpaket
- Split-Klimaanlage
- Split-Klimaanlage
- Elektrischer Wassererhitzer
- Fußbodenheizungssystem
- Fliegengitter an allen Türen und Fenstern
Haushaltsgeräte-Paket
- Unterbaukühlschrank
- 2-Flammen Einbaukochfeld
- Eingebaute Dunstabzugshaube
- Eingebaute Mikrowelle
- Geschirrspüler
- LCD-Smart-TV
Möbelpaket
- 3-Sitzer Sofa
- 2-Sitzer Sofa
- Einzelsessel
- Esstisch und Stühle
- Schlafzimmer-Set
- TV-Einheit und Paneel
- Garderobenschrank
- Tüllvorhänge mit teilweiser Jalousie und Leinenhintergrund an allen Fenstern
Technologiepaket
- Smart-Home-System (Lichtsteuerung)
- Smart-Belüftungssystem
![]()
Anfrage
Nehmen Sie jetzt Kontakt mit unseren Hausberater auf – alle Beratungen sind unverbindlich und kostenlos
![]()
Kalkulation
Sie erhalten von uns alle wichtigen Informationen für Ihre Planung. Ihr Baupartner erstellt dann das konkrete Angebot, welches Ihre Wünsche und Anforderungen berücksichtigt
![]()
Auftrag
Sobald Ihnen alle Genehmigungen vorliegen, steht Ihrem Bauvorhaben nichts mehr im Weg. Jetzt kann endlich die Produktion Ihres Hauses starten.













