Tiny House in Modulbauweise auf 5-Sterne-Niveau
Dieses schlüsselfertige Tiny House in Modulbauweise vereint spektakuläre, moderne Architektur mit höchsten Ansprüchen an Nachhaltigkeit und Effizienz. Die fließenden Formen, das elegante Lochmuster in der Fassade und die beeindruckenden, bogenförmigen Panoramafenster schaffen ein lichtdurchflutetes, exklusives Ambiente. Dank der modularen Bauweise profitieren Sie von minimaler Bauzeit und festen Kosten. Perfekt als luxuriöses Domizil, flexibles Büro oder hochwertiges Feriendomizil – ideal für alle, die designorientiert, energieeffizient und nachhaltig leben möchten. Dieses Haus ist Ihr Statement für modernes, flexibles Wohnen. Jetzt mehr über dieses einzigartige Eco-Modulhaus erfahren!
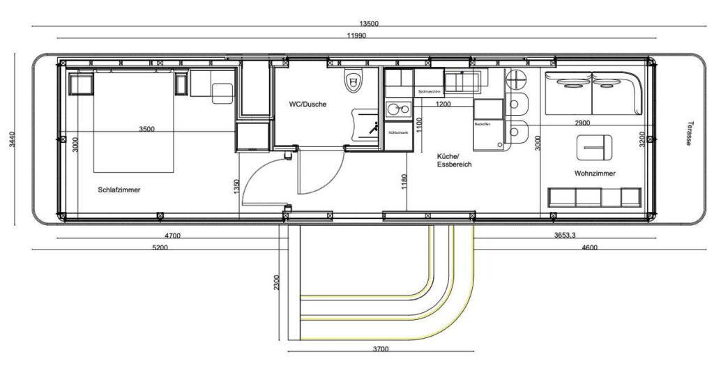
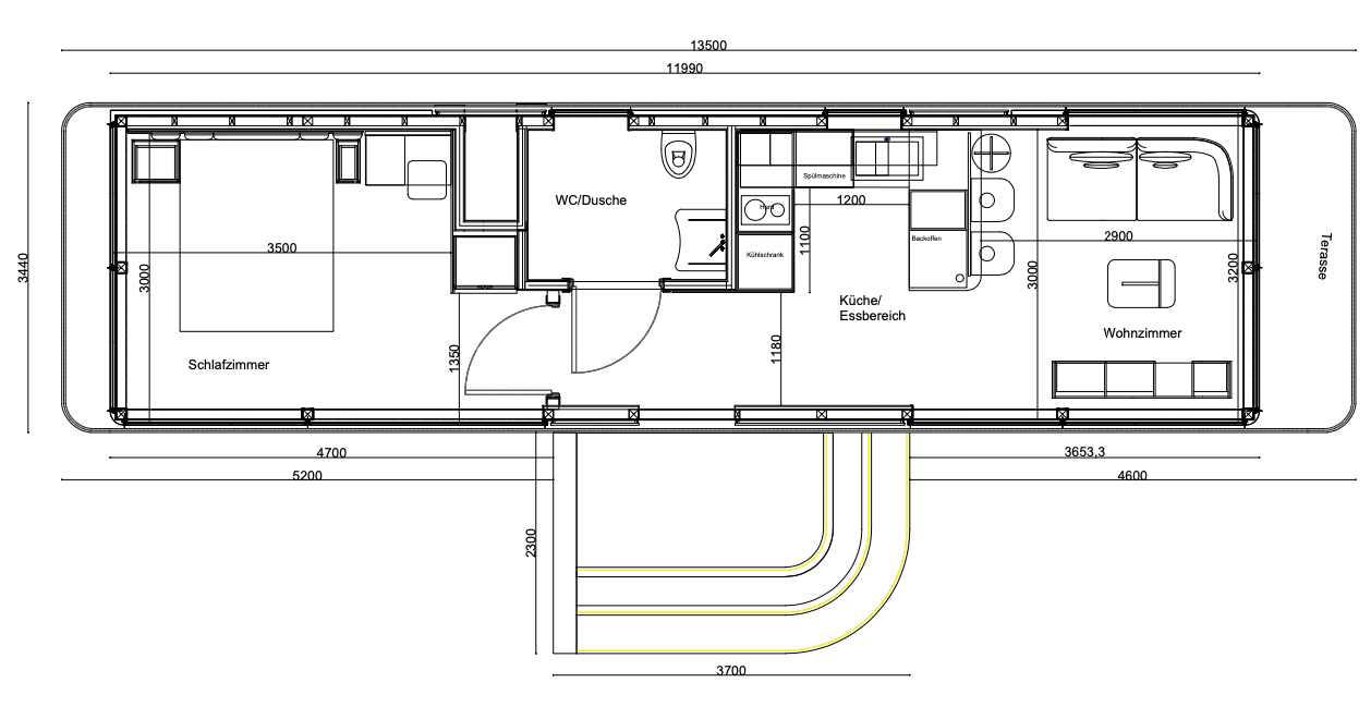
Grundfläche: 46 m²
Wohnfläche: 39 m²
Musterhaus Standort: Nürnberg
Komfortpaket
- 12.000 BTU Klima anlage – Deckenkasette (handschriftlich: Deckenkasette)
- 7.000 BTU Klima anlage – Deckenkasette (handschriftlich: Deckenkasette)
- Elektrischer Wassererhitzer
- Fußbodenheizungssystem
- Fliegengitter an allen Türen und Fenstern
Haushaltsgeräte-Paket
- Unterbaukühlschrank
- 2-Flammen Einbaukochfeld
- Eingebaute Dunstabzugshaube
- Eingebaute Mikrowelle
- Geschirrspüler
- 32″ LCD-Smart-TV
Möbelpaket
- 2-Sitzer Sofa
- Einzelsessel
- Esstisch und Stühle
- Schlafzimmer-Set
- TV-Einheit und Paneel
- Garderobenschrank
- Tüllvorhänge mit teilweiser Jalousie und Leinenhintergrund an allen Fenstern
Technologiepaket
- Smart-Home-System (Lichtsteuerung)
- Smart-Belüftungssystem
![]()
Anfrage
Nehmen Sie jetzt Kontakt mit unseren Hausberater auf – alle Beratungen sind unverbindlich und kostenlos
![]()
Kalkulation
Sie erhalten von uns alle wichtigen Informationen für Ihre Planung. Ihr Baupartner erstellt dann das konkrete Angebot, welches Ihre Wünsche und Anforderungen berücksichtigt
![]()
Auftrag
Sobald Ihnen alle Genehmigungen vorliegen, steht Ihrem Bauvorhaben nichts mehr im Weg. Jetzt kann endlich die Produktion Ihres Hauses starten.













